Search

Leave a Message

Thank you for your message. I will be in touch with you shortly.

Explore My Properties

Property Description

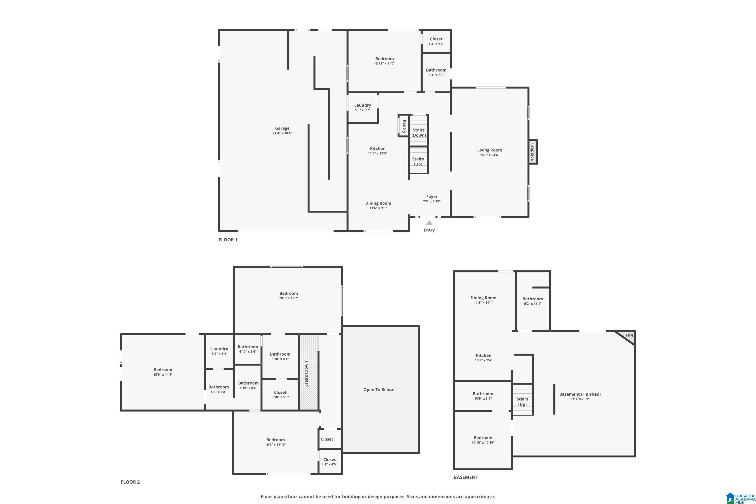
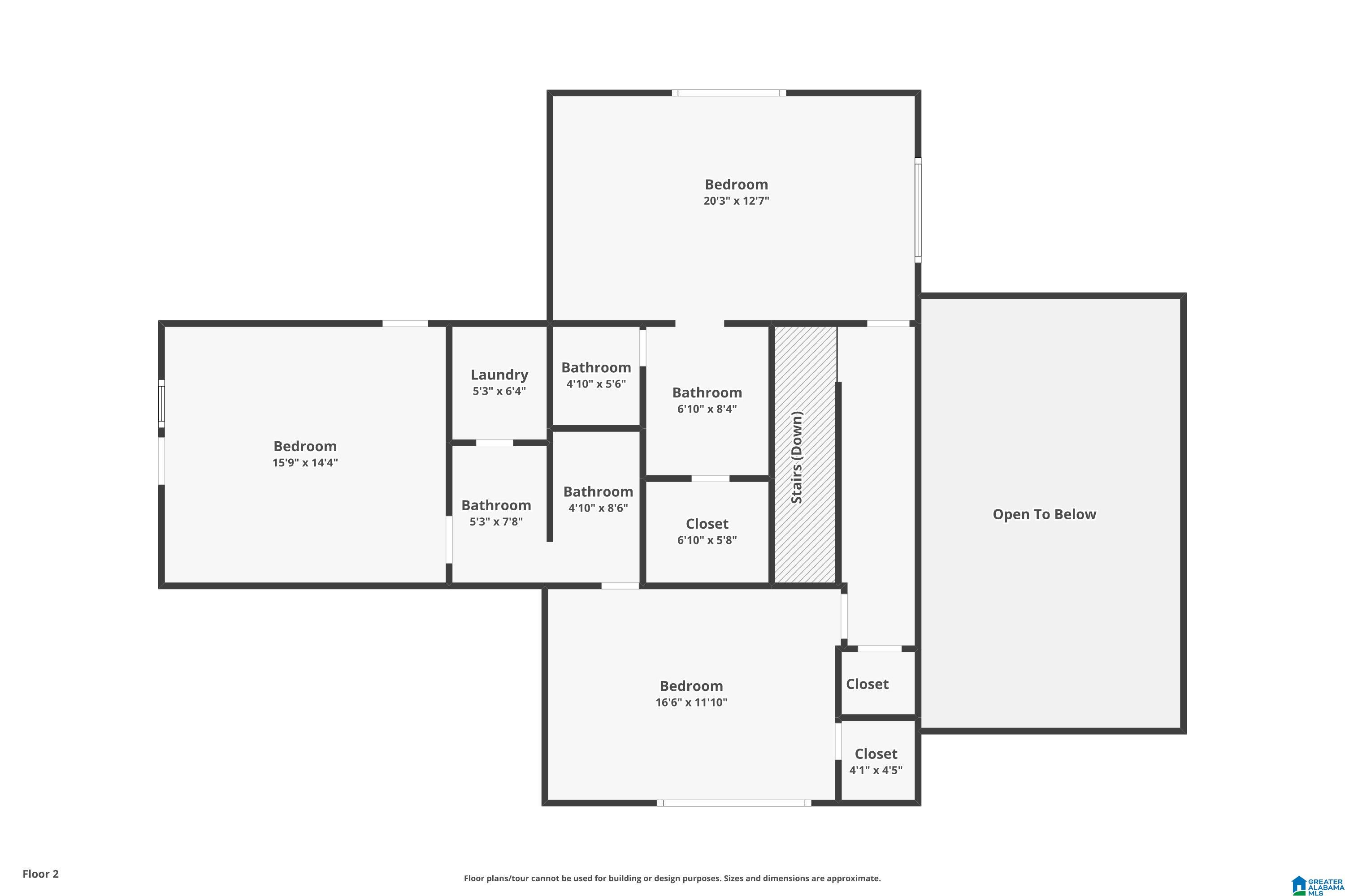
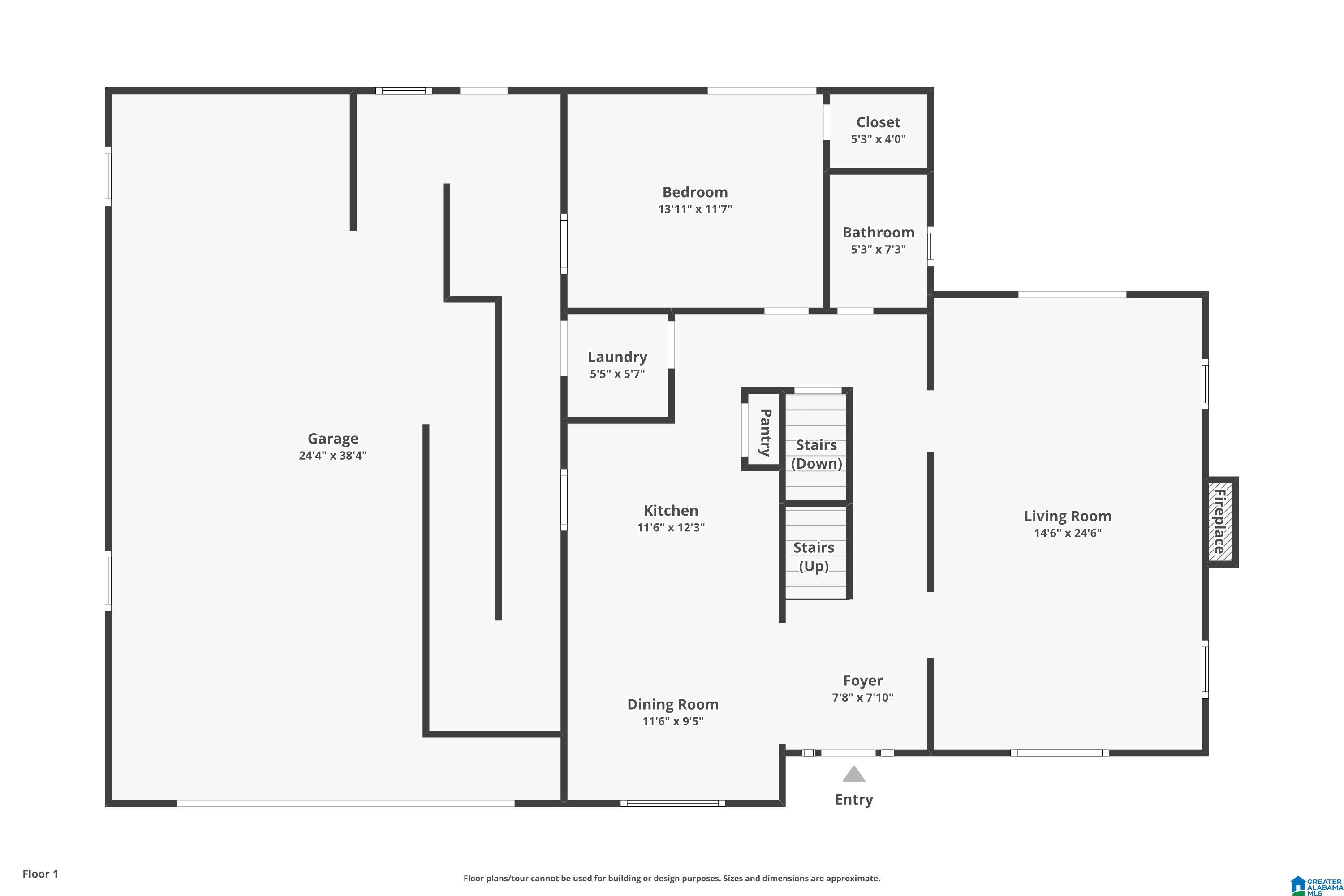
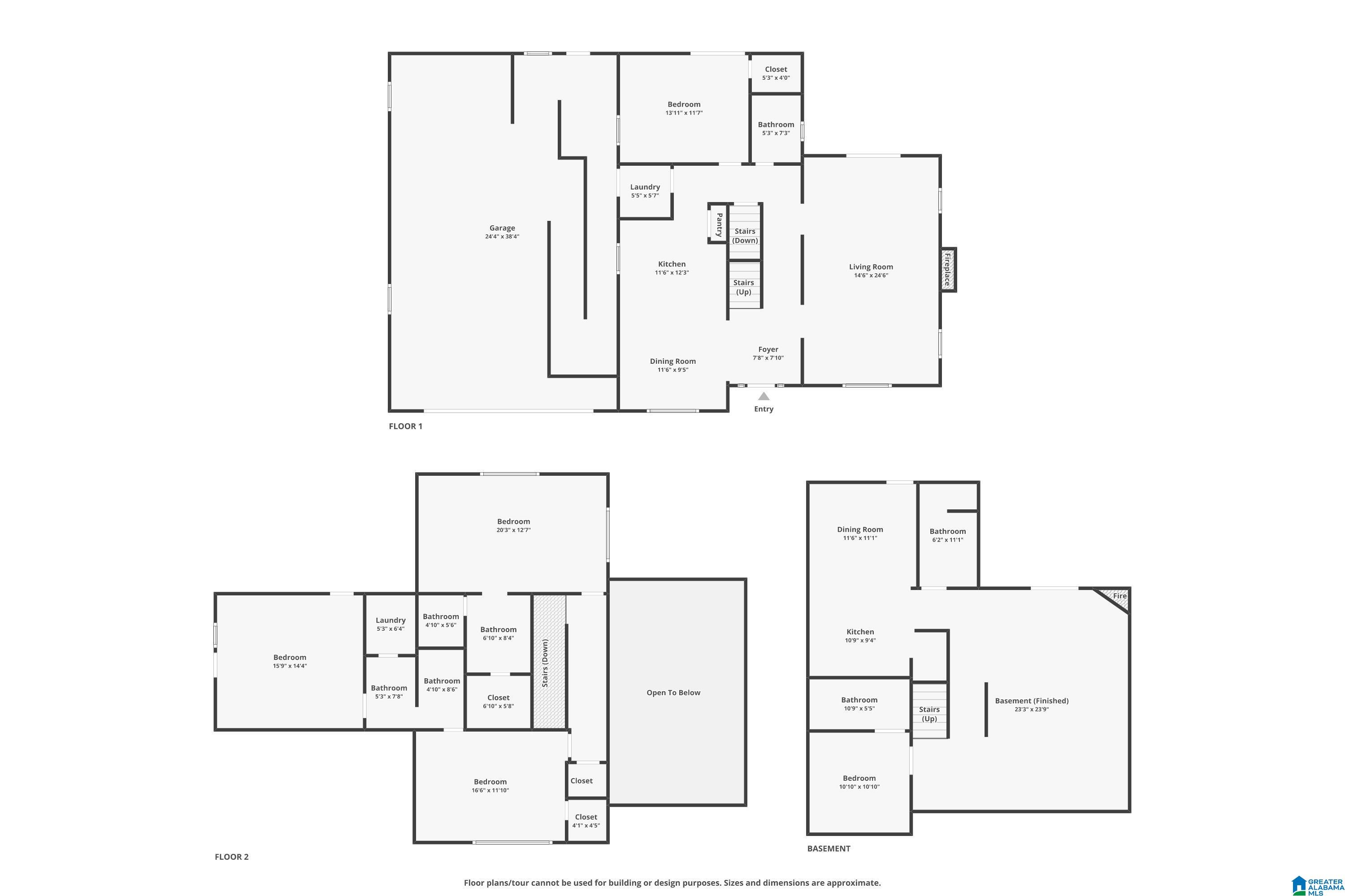
Back On Market at no fault to seller! Located on a dead end street and minutes to Stemley Bridge! With almost 100 feet of water frontage, an in ground swimming pool, and, plenty of space for entertaining family and guests as a secondary home or your next primary residence.This home boasts 4 bedrooms and 4 full baths and three levels of living.Natural hardwoods flow seamlessly from room to room on main level with a cathedral ceiling in living room and wood-burning fireplace.Guest bed and full bath on main along with kitchen and eat-in dining area.Spacious, open back deck overlooking the lake Master suite on second story with walk in closet, walk in shower, and double vanity. 2 guest beds and shared full bath.Fully finished basement with living area and wet bar, recently added full guest bath, and bonus room that could be utilized as a 5th bedroom! Walkout covered back patio with wrought-iron fencing surrounding the in ground pool.Come own your slice of paradise!

Overview

Property Status
Active Under Contract
Lot Size
0.53 Acres
MLS ID
21435874
Property Type
Residential
Year Built
1977

Features & Amenities

Architecture Styles
2 Story
Garage Spaces
2.0
Water Source
Public
Utilites
Underground Utilities
Pool
Outdoor Pool, In Ground
Lot Features
Waterfront
Parking
Off Street, Attached, Unassigned
Heat Type
Central
Air Conditioning
Central Air
Laundry Room
Main Level, Electric Dryer Hookup, Washer Hookup, In Garage
Fireplace
Gas Starter, Living Room, Recreation Room, Wood Burning, Gas
Appliances
Dishwasher, Electric Oven, Electric Cooktop, Electric Water Heater, Dryer
Other Interior Features
Cathedral Ceiling(s), Walk-In Closet(s), High Ceilings, Wet Bar, Recessed Lighting
Sewer
Septic Tank
Other Exterior Features
Dock, Lighting
Elementary School
COOSA VALLEY
Middle School
DURAN
High School
PELL CITY
Sales Price
$475,000

Downloads

5029 FOREST DRIVE

Schedule a Tour

I’d love to help you see this beautiful home! As your dedicated agent, I can arrange a tour, guide you through submitting an offer, and answer any questions about the buying process.

Enter a valid email

Thank you

for your interest in 5029 FOREST DRIVE, PELL CITY, AL 35128

back to page
5029 FOREST DRIVE
Navigate
5029 FOREST DRIVE
explore in 3d

Mortgage Calculator

Estimate your monthly mortgage payment, including the principal and interest, property taxes, and HOA. Adjust the values to generate a more accurate rate.
$0,000 Your Payment 20 15 65
$0,000 Your Payment

I'm Interested In

5029 FOREST DRIVE

or
  • CallBilly Brodie

    License #000133070

    (205) 332-9224
  • Browse My

    Featured Properties

    • 182 OSPREY AVENUE For Sale

      $1,485,000

      182 OSPREY AVENUE, ARLEY, AL 35541

      • 4 Beds
      • 3.5 Baths
      • 3,588 Sq.Ft.
    • 5587 CARRINGTON LAKE PARKWAY For Sale

      $1,100,000

      5587 CARRINGTON LAKE PARKWAY, TRUSSVILLE, AL 35173

      • 4 Beds
      • 3.5 Baths
      • 5,468 Sq.Ft.
    • 5775 CARRINGTON LAKE PARKWAY For Sale

      $870,000

      5775 CARRINGTON LAKE PARKWAY, TRUSSVILLE, AL 35173

      • 5 Beds
      • 4.5 Baths
      • 5,220 Sq.Ft.
    • 127 MEADOW LANE For Sale

      $515,000

      127 MEADOW LANE, TRUSSVILLE, AL 35173

      • 3 Beds
      • 2 Baths
      • 1,210 Sq.Ft.
    • 5029 FOREST DRIVE Active Under Contract

      $475,000

      5029 FOREST DRIVE, PELL CITY, AL 35128

      • 4 Beds
      • 4 Baths
      • 3,172 Sq.Ft.
    • 75 ASBURY COURT For Sale

      $400,000

      75 ASBURY COURT, ODENVILLE, AL 35120

      • 3 Beds
      • 2 Baths
      • 1,715 Sq.Ft.
    • 8881 PINE MOUNTAIN ROAD Pending

      $379,900

      8881 PINE MOUNTAIN ROAD, PINSON, AL 35126

      • 3 Beds
      • 2 Baths
      • 2,497 Sq.Ft.
    • 3477 CEDARBROOK CIRCLE For Sale

      $330,000

      3477 CEDARBROOK CIRCLE, TRUSSVILLE, AL 35173

      • 3 Beds
      • 2 Baths
      • 1,362 Sq.Ft.
    • 6032 MOUNTAIN VIEW TRACE Active Under Contract

      $325,000

      6032 MOUNTAIN VIEW TRACE, TRUSSVILLE, AL 35173

      • 3 Beds
      • 2 Baths
      • 1,659 Sq.Ft.
    • 3035 APPLE VALLEY LANE Active Under Contract

      $234,900

      3035 APPLE VALLEY LANE, BIRMINGHAM, AL 35215

      • 3 Beds
      • 2 Baths
      • 1,682 Sq.Ft.
    View All

    Follow Us On Instagram